Baustellen-Info: Erneuerung der Werkleitungen an der Fürstenlandstrasse

29. Oktober 2025

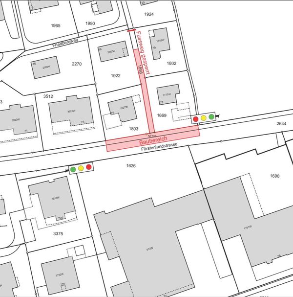
Die TBW erneuern an der Fürstenlandstrasse im Bereich der Hausnummern 75–79 die Werkleitungen. Im Rahmen des Projekts werden eine Verteilkabine und diverse Hausanschlüsse der Elektrizitäts- und Wasserversorgung erneuert.

Während der Bauarbeiten regelt eine Lichtsignalanlage den Verkehr auf der Fürstenlandstrasse. Dieser wird einspurig an der Baustelle vorbeigeführt. Der Fussweg zwischen dem Friedbergweg und der Fürstenlandstrasse bleibt während dieser Zeit gesperrt.

Baubeginn: 30. Oktober 2025
Dauer: bis Dezember 2025